^
Просмотрено: 96

Коммерческий объект 630,5 м²

Позвонить
Челябинск, Героев Танкограда ул., 91
630 000 Руб.
 Цена за м2 999.21 Руб.
1
комната
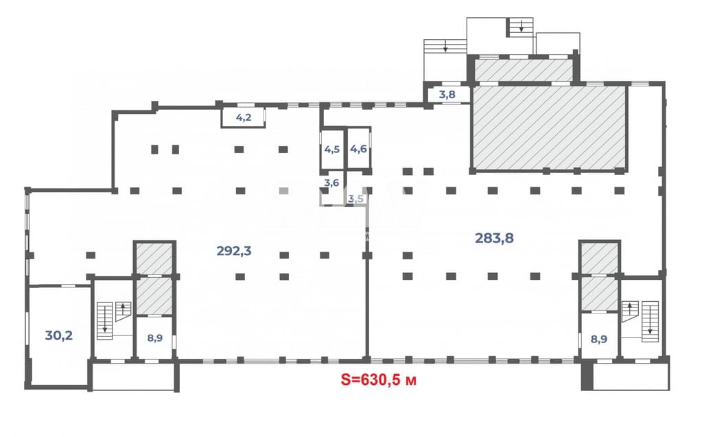
630,5 м2
площадь
1/16
этаж

Характеристики

Площадь
630,5 м2
Ремонт
требует ремонта
Вход
2
Наличие мебели
нет

Описание объекта

Предлагаем в аренду торговое помещение, расположенное на первой линии гостевого маршрута города в новом ЖК Театральный. Свободная планировка, высокие потолки, приточно-вытяжная вентиляция, достаточное количество естественного освещения. По техническим характеристикам отлично подходит под: обучающий центр, стоматология, медицинский центр, банк, офис представительство компании, фитнес клуб, танцевальная студия, ресторан, объект общественного питания и др.

Первая линия оживленного гостевого маршрута города – пр. Комарова/ ул. Героев Танкограда.
ЖК Театральный — это современный жилой комплекс на проспекте Ленина, рядом с Театром ЧТЗ, состоящий из трех разноэтажных домов (10 и 15 этажей).

Рядом с объектом расположены: Дворец культуры ЧТЗ, Дворец Спорта «Надежда», Ледовый дворец Трактор, Бассейн «Юбилейный», Институт Спорта туризма и сервиса, через дорогу главный офис ИФНС и Театр ЧТЗ.

350 м. до парка им. Терешковой
550 м до парка Сад Победы

Преимущества объекта:
Расположение в новом современном ЖК
Отличная визуализация, место для размещения рекламы
Удобная транспортная доступность, остановка общественного транспорта (16 маршрутов)
Всегда высокий пешеходный и автомобильный трафик
Просторная парковка для клиентов
Благоустроенная территория
В стоимость арендной платы включены НДС

Технические характеристики:
Общая площадь: 630,5 кв.м., (есть площади от 270 до 900 кв.м.)
Этаж: 1
Вход: 2
Планировка: Свободная
Высота потолков: 3,8 м.
Электрическая мощность: 15 кВт, возможно увеличение
Вентиляция: Приточно-вытяжная
Ремонт: Черновая отделка, предоставляются арендные каникулы
Санузел: 2, возможно добавить количество
Коммуникации: Центральные

Развитая инфраструктура в радиусе 500 м. Количество работающих в БЦ = 8 049 сотрудников!
Более 450 объектов Генераторов трафика
44 объекта Медицинской тематики
48 объектов Спортивной тематики
17 объектов Общественного питания
22 объекта Детской тематики
33 объекта Научные и учебные заведения

Район представляет собой застройку жилых домов, средней этажностью 12 этажей. В радиусе 500 м. от расположения помещения проживает около 10 632 жителей.
Преимущественно семьи с детьми. Наибольшее количество жителей в возрасте от 25 до 50 лет. Средний доход семьи из двух работающих составляет 92 923руб.

Заинтересовались объектом? Позвоните, отвечу на ваши вопросы!
Внимание под Продуктовые магазины и «Красное белое» - аренду не рассматриваем.
Арт. 50591226

Заказать звонок

Отправляя заявку, вы соглашаетесь на обработку персональных данных

Поделиться объектом

Живые просмотры

Если вам понравился данный объект, оставьте свою заявку на просмотр, и мы свяжемся с Вами, чтобы выбрать удобный день и время.
Оставить заявку

Ипотека

Оставьте заявку на консультацию и наши специалисты помогут рассчитать ипотеку и правильно оформить документы.
Оставить заявку

TRADE-IN

Трейд-ин - один из самых безопасных и востребованных инструментов при покупке нового жилья, а также хорошая возможность существенно увеличить свое жизненное пространство.
Оставить заявку

Похожие предложения

На карте
Например:Дуплекс