^
Просмотрено: 73

2-комнатная квартира, 50,1 м²

Позвонить
Челябинск, Калининский р-н, Братьев Кашириных ул., 105, литера А
6 500 000 Руб.
 Цена за м2 129 740.52 Руб.
2
комнаты
50,1 м2
площадь
6/9
этаж

Характеристики

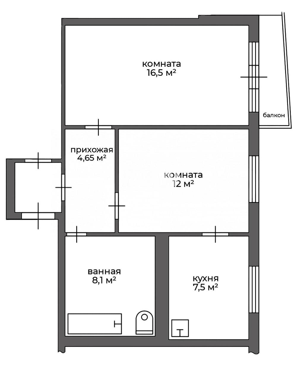
Площадь
50,1 м2
Жилая площадь
28,5 м2
Кухня
7,5 м2
Балкон
Есть
Год постройки
1980
Отопление
Центральное
Ремонт
косметический

Описание объекта

Уютная светлая квартира с продуманным ремонтом

- Площадь: ванная 8,1 м², комнаты 16,5 и 12,09 м², кухня 7,44 м².
- Ремонт: выполнен качественно, стены выровнены, проводка полностью заменена на медную, пол в один уровень. В комнате с балконом — паркет. Двери и арка из натурального шпона.
- Балкон: утеплён, с ковром — комфортно в любое время года.
- Техника и мебель: кухня со встроенной техникой остаётся. Другая мебель — по договорённости.
- Комфорт: кондиционер и водонагреватель. Окна на юг — много света, зимой тепло, летом не жарко.
- Инфраструктура: рядом 104-я школа, ОЦ №1 и 4 садика.
- Вид из окна: на лес и пруд «Коммунар» на реке Миасс. Рядом вход в парк и благоустроенная набережная с велодорожкой.

Обновления в доме и районе
В 2024 году заменены бойлеры во всём доме. В 2025 году — полная замена теплотрассы (до 26.11.25) и благоустройство улицы Кашириных. В 2026 году — благоустройство поверх новой теплотрассы. Теперь летние отключения воды будут быстрыми и без аварий.
Арт. 133670186

Заказать звонок

Отправляя заявку, вы соглашаетесь на обработку персональных данных

Поделиться объектом

Живые просмотры

Если вам понравился данный объект, оставьте свою заявку на просмотр, и мы свяжемся с Вами, чтобы выбрать удобный день и время.
Оставить заявку

Ипотека

Оставьте заявку на консультацию и наши специалисты помогут рассчитать ипотеку и правильно оформить документы.
Оставить заявку

TRADE-IN

Трейд-ин - один из самых безопасных и востребованных инструментов при покупке нового жилья, а также хорошая возможность существенно увеличить свое жизненное пространство.
Оставить заявку

Похожие предложения

На карте
Например:Дуплекс