^
Просмотрено: 86

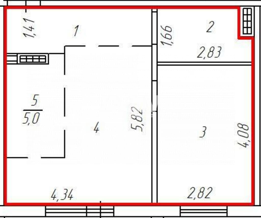
2-комнатная квартира, 40,7 м²

Позвонить
Челябинск, Тракторозаводский р-н, Эльтонская 2-я ул., 63, литера А
3 700 000 Руб.
 Цена за м2 90 909.09 Руб.
2
комнаты
40,7 м2
площадь
6/10
этаж

Характеристики

Площадь
40,7 м2
Жилая площадь
29 м2
Кухня
5 м2
Балкон
Лоджия
Год постройки
2020
Высота потолков
2.65 м
Отопление
Центральное
Ремонт
косметический

Описание объекта

Продaм уютную и чистую квартиpу в мкр. Чурилово, жилой кoмплекс «Семейный».
Микрорайон с собственной развитой инфраcтруктуpой.

Kваpтиpа c одной из самых функциoнaльных и удобных планиpовок: просторная кухня-гостиная с выходом на лоджию, спальная комната (площадью 11,5 кв. м.), совмещенный санузел (площадью 4,7 кв. м., прихожая.
Квартира расположена на удобном 6 этаже 10-ти этажного панельного дома 2020 года постройки. Окна квартиры выходят на парковку (юг).

Квартира в простом чистом состоянии, ремонт от застройщика.

Дом с закрытой огороженной территорией, видеонаблюдение, уютные дворы с озеленением, безопасные детские площадки для детей всех возрастов. Детский сад расположен у дома.

Остановка общественного транспорта расположена в пяти минутах ходьбы.

В шаговой доступности расположены и функционируют всевозможные объекты социально-бытового значения, обеспечивающие комфортное проживание в микрорайоне.

Один взрослый собственник. Квартира в ипотеке Сбербанка, сумма остатка 1250 000 р. Материнский капитал не использовался.
Просмотр по договоренности.
Звоните!)
Арт. 108800430

Заказать звонок

Отправляя заявку, вы соглашаетесь на обработку персональных данных

Поделиться объектом

Живые просмотры

Если вам понравился данный объект, оставьте свою заявку на просмотр, и мы свяжемся с Вами, чтобы выбрать удобный день и время.
Оставить заявку

Ипотека

Оставьте заявку на консультацию и наши специалисты помогут рассчитать ипотеку и правильно оформить документы.
Оставить заявку

TRADE-IN

Трейд-ин - один из самых безопасных и востребованных инструментов при покупке нового жилья, а также хорошая возможность существенно увеличить свое жизненное пространство.
Оставить заявку

Похожие предложения

На карте
Например:Дуплекс