^
Просмотрено: 36

Офис 685,3 м²

Позвонить
Челябинск, Свердловский пр-кт., 84, литера б
49 900 000 Руб.
 Цена за м2 72 814.83 Руб.
1
комната
685,3 м2
площадь
2/8
этаж

Характеристики

Площадь
685,3 м2
Ремонт
хороший
Вход
общий вход
Наличие мебели
нет

Описание объекта

Продаётся коммерческое помещение свободного назначения расположенное на первой линии бизнес-центра по ул. Свердловский проспект.
Объект имеет выгодное местоположение благодаря близости основных транспортных артерий центральной части города по ул. Свердловский проспект, в сторону ул. Воровского и Блюхера, что обеспечивает удобную транспортную доступность со всех районов города и снижает временные издержки для посетителей и сотрудников.
Объект подходит для ведения любой коммерческой деятельности: офис продаж, представительство компании, центр красоты, учебный центр, чистое производство с учетом небольшой складской зона хранения. Важно отметить, что во всех помещения проведет качественный ремонт. Заселен арендаторами.

Технические характеристики:
  • Адрес: г. Челябинск, ул. Свердловский проспект 84Б
  • Вид права: собственность ИП
  • Общая площадь: 685 м²
  • Этаж: 2-й
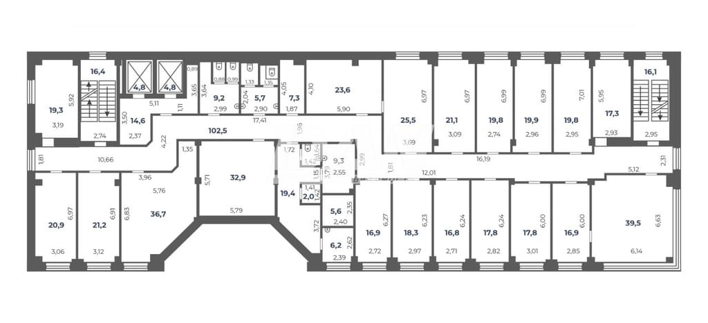
  • Тип объекта: офисные помещения (21 каб.)
  • Коммуникации: Центральные
  • Санузел: собственный на этаже (2 шт.)
  • Электрическая мощность: 30 кВт
  • Высота потолков: 2,7
  • Материал стен: Кирпич
  • Охрана и безопасность: Пожарно-охранная сигнализация, видеонаблюдение
  • Парковка: Общая (21 машиноместо), на противоположной стороне (40 машиномест)
  • Остановка общественного транспорта: Ост. Южная – 70м (10 маршрутов)


Дополнительные преимущества:
  • Полностью заселен арендаторами. (ГАБ)
  • Возможность размещения рекламной вывески на фасаде.
  • Осуществляется круглосуточная охрана здания частной охранной компанией.
  • В фойе 1-го этажа бизнес центра располагается ресепшен.


Инфраструктура в радиусе 500 м. пешеходной доступности:
  • Почтовые отделения, ПВЗ, постаматы - 16 шт.
  • Объекты детской тематики - 30 шт.
  • Научные и учебные заведения - 18 шт.
  • Государственные и муниципальные учреждения - 19 шт.
  • Магазины одежды, обуви и аксессуаров - 11 шт.
  • Магазины товаров народного потребления - 18 шт.
  • Магазины электроники и бытовой техники - 8 шт.
  • Объекты DIY, мебель, товары для дома - 20 шт.
  • Объекты автомобильной тематики - 11 шт.
  • Объекты бытовых услуг - 124 шт.
  • Объекты медицинской тематики - 39 шт.
  • Объекты общественного питания - 21 шт.
  • Объекты продуктового ритейла. FMCG - 43 шт.
  • Объекты спортивной тематики - 16 шт.
  • Объекты сферы культуры - 1 шт.
  • Объекты сферы отдыха и развлечений - 5 шт.
  • Объекты сферы туризма - 13 шт.
  • Объекты финансовой сферы и страхования - 28 шт.

* информация получена из открытых источников

В радиусе 500 м расположены многоквартирные жилые дома со средней этажностью 5-10 этажей. Плотность населения в данном жилом районе 16 540 человек. Среднемесячный доход семьи из двух работающих человек 138 081 рублей в месяц.

Звоните!
Буду рад Вам помочь!
С уважением агент DAN недвижимость Тихомиров Петр.
Арт. 111494568

Заказать звонок

Отправляя заявку, вы соглашаетесь на обработку персональных данных

Поделиться объектом

Живые просмотры

Если вам понравился данный объект, оставьте свою заявку на просмотр, и мы свяжемся с Вами, чтобы выбрать удобный день и время.
Оставить заявку

Ипотека

Оставьте заявку на консультацию и наши специалисты помогут рассчитать ипотеку и правильно оформить документы.
Оставить заявку

TRADE-IN

Трейд-ин - один из самых безопасных и востребованных инструментов при покупке нового жилья, а также хорошая возможность существенно увеличить свое жизненное пространство.
Оставить заявку

Похожие предложения

На карте
Например:Дуплекс