^
Просмотрено: 14

Дом 115,8 м²

Позвонить
Кировский, Волгоградская ул., 42
4 990 000 Руб.
 Цена за м2 96 893.20 Руб.
3
комнаты
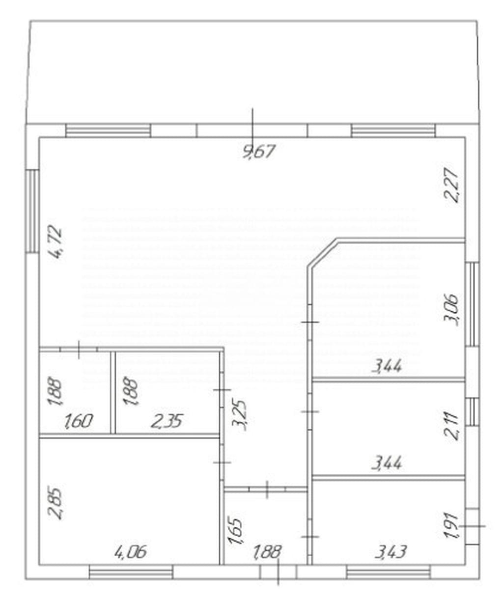
115,8 м2
площадь
1000м2
участок
1
этаж
ЩитовойДома 3 комнаты

Характеристики

Площадь участка
1000 м2
Площадь дома
115,8 м2
Жилая площадь
51,5 м2
Категория земель
ИЖС
Отопление
Нет
Год постройки
2023
Ремонт
требует ремонта

Описание объекта

Срочная продажа!

Представляем вашему вниманию уютный загородный дом из экологически чистых SIP-панелей площадью 115,8 м²!
  1. Год постройки: 2023 (только что построен для вашей счастливой жизни!)
  2. Расположение: Коттеджный посёлок Дружный, всего в 33 км от Челябинска (идеальное сочетание уединения и близости к городу!)
  3. Особенности участка: Участок гармонично вписывается в живописный ландшафт. С террасы открывается захватывающий вид на лес и поля, где каждый день будет наполнен покоем и вдохновением.
  4. Коммуникации: Электричество уже подведено, а окна Salamander подарят вам тепло и тишину в любое время года.
  5. Планировка: Просторный и продуманный до мелочей дом включает в себя кухню с кладовой, две уютные спальни, удобную гардеробную, просторную гостиную и котельную зону с отдельным входом. Здесь вы сможете воплотить в жизнь все свои дизайнерские мечты!
  6. Преимущества участка: Расположен на возвышении, а небольшой естественный уклон исключает любые проблемы с подтоплениями даже в самые сильные дожди. Жизнь здесь — это гармония и комфорт.
  7. Инфраструктура посёлка: В посёлке уже проведен высокоскоростной интернет, а зимой и летом вас порадуют ухоженные дороги. В ближайшем будущем посёлок ждёт газификация, что значительно повысит уровень комфорта и стоимость участков.
  8. Дополнительные плюсы: Чистая вода из колодца у въезда в посёлок — залог здоровья и свежести. Доброжелательные соседи создают атмосферу дружбы и поддержки. Многие живут здесь круглый год, и у вас будет возможность стать частью этого дружного сообщества.


Этот дом — не просто недвижимость, это ваш будущий уютный уголок, где каждый день будет наполнен счастьем и гармонией. Мы ждём вас на просмотр, чтобы вы смогли лично убедиться в его очаровании!
Арт. 119227994

Заказать звонок

Отправляя заявку, вы соглашаетесь на обработку персональных данных

Поделиться объектом

Живые просмотры

Если вам понравился данный объект, оставьте свою заявку на просмотр, и мы свяжемся с Вами, чтобы выбрать удобный день и время.
Оставить заявку

Ипотека

Оставьте заявку на консультацию и наши специалисты помогут рассчитать ипотеку и правильно оформить документы.
Оставить заявку

TRADE-IN

Трейд-ин - один из самых безопасных и востребованных инструментов при покупке нового жилья, а также хорошая возможность существенно увеличить свое жизненное пространство.
Оставить заявку
На карте
Например:Дуплекс