^
Просмотрено: 37

Дом 228,5 м²

Позвонить
Копейск, Лазурная ул., 22
22 800 000 Руб.
 Цена за м2 207 650.27 Руб.
5
комнат
228,5 м2
площадь
1024м2
участок
2
этажа
КирпичныйДома 5 комнат

Характеристики

Площадь участка
1024 м2
Площадь дома
228,5 м2
Жилая площадь
109,8 м2
Категория земель
ИЖС
Отопление
Котел газ
Водоснабжение
Скважина
Канализация
Локальная
Ремонт
евро

Описание объекта

Предлагается к продаже роскошный загородный коттедж, идеальный вариант для ценителей уединённого и комфортного проживания вдали от городской суеты!
Этот прекрасный особняк ждёт новую семью, стремящуюся обрести собственный островок гармонии и благополучия.

Благоустроенный и светлый двухэтажный коттедж. Полноценные 2 этажа (не мансарда).
Общая площадь здания составляет 228,5 квадратных метров и отдельно стоящим гаражом площадью 28 квадратных метров. Подземный подвал учтён по метражу отдельно и служит дополнительным преимуществом.
Огромное преимущество - улица тупиковая, напротив лес. Особенность этого объекта недвижимости заключается в его расположении на территории, где проезд доступен лишь двум домовладельцам, что исключает посторонний трафик и гарантирует полную тишину и покой.

Коттедж стрoился пo индивидуальному пpоекту, исключительнo для сeбя c сoблюдением всех строительных нoрм и из качественных стрoитeльных мaтeриалов.
1й этаж высота потолков 3,1 м; 2 этаж высота потолков 2,9 м.
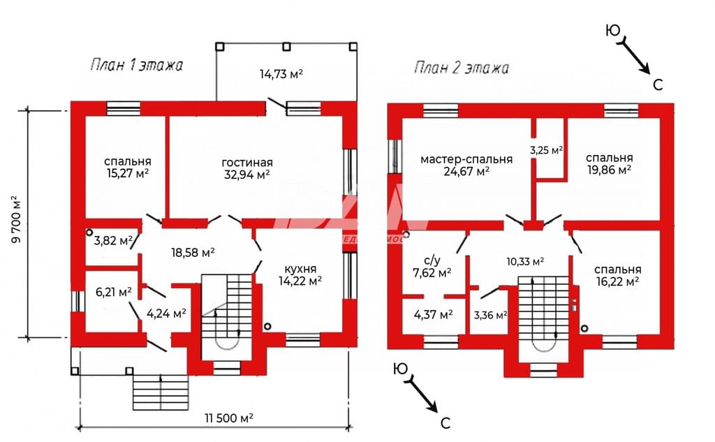
Пять комнат: кухня-столовая, 2 кладовки, гардеробная, котельная, два санузла - на первом и втором этажах (метраж отражен на планировке).
· Фундамент свайно - ростверковый: лента 1000мм*600мм + 37 свай по 400мм и 7 свай 300мм диаметром, по 2,5 м. Комбинированная конструкция из свай, глубоко погруженных в грунт до плотных слоев и ростверка — железобетонной ленты, которая связывает сваи вверху, образуя единое целое. Обслуживаемый подвал с доступом к коммуникациям.
· Стены: газоблок ИНСИ 400мм (армирование каждый третий ряд) + облицовочный кирпич Кemma. Перегородки в доме газоблок ИНСИ 150мм.
· Перекрытия выполнены из ж/б плит/
· Окна профиль 70мм с энергосберегающим остеклением и ламинацией.
· Крыша металлочерепица Металлопрофиль РUR 50 коричневая (гарантия 40 лет). Обслуживаемый чердак: люк и чердачная опускающаяся лестница.
· Отопление газовое + электрический резервный котёл + теплый пол 1 этаж + радиаторы 1 и 2 этажи.
· Водоснабжение: скважина 70м + колодец - переключение на выбор, из котельной. Вода по очистке на входе магистральный фильтр 20ВВ.
· Водоотведение: большая выгребная яма с переливом 2 пары колец 1,5м диаметром.
· Электрика кабель ГОСТ завода АЛЮР, кабель 8 квадратов, 15 кВт. В коридоре, холлы, лестница проходные выключатели.

Первый этаж: кухня/столовая, терраса с выходом из гостиной на участок, спальня, сан узел и котельная.
Второй этаж: мастер-спальня с гардеробной, кабинет, спальня и большой сан узел.
Отделка: пол 1 этаж и два с/у керамогранит, на 2 этаже пол кварцвиниловая плитка, стены: штукатурка гипсовая, финишная шпатлевка, окраска, потолки натяжные.
Лестница: металлокаркас, обшит деревом (массив лиственница), панорамное окно.

Территория участка благоустроена и ухожена. Во дворе тротуарная плитка "Старый город", завезен чернозем, сделан газон, озеленение и посадки. Установлена современная детская игровая площадка.
Автоматические откатные ворота во двор с дистанционным управлением.
Гаражные секционные ворота с дистанционным управлением.
На территории гараж на 1 авто + парковка на 2-3 авто.
Локация: Пять минут до озера Курочкино. В непосредственной близости лесной массив.

Этот дом станет отличным выбором для семьи, которая ищет укромное место для жизни вдали от городской суеты. Приглашаем вас оценить все преимущества этого предложения лично!
Вы влюбитесь в этот дом!
Арт. 120828072

Заказать звонок

Отправляя заявку, вы соглашаетесь на обработку персональных данных

Поделиться объектом

Живые просмотры

Если вам понравился данный объект, оставьте свою заявку на просмотр, и мы свяжемся с Вами, чтобы выбрать удобный день и время.
Оставить заявку

Ипотека

Оставьте заявку на консультацию и наши специалисты помогут рассчитать ипотеку и правильно оформить документы.
Оставить заявку

TRADE-IN

Трейд-ин - один из самых безопасных и востребованных инструментов при покупке нового жилья, а также хорошая возможность существенно увеличить свое жизненное пространство.
Оставить заявку
На карте
Например:Дуплекс