^
Просмотрено: 30

Дом 125 м²

Позвонить
коттеджный посёлок Княжий тер., Челябинская область, Сосновский район, коттеджный посёлок Княжий тер.
12 500 000 Руб.
 Цена за м2 156 250.00 Руб.
3
комнаты
125 м2
площадь
700м2
участок
1
этаж
ГазобетонДома 3 комнаты

Характеристики

Площадь участка
700 м2
Площадь дома
125 м2
Жилая площадь
80 м2
Категория земель
ИЖС
Отопление
Электрокотел
Год постройки
2024
Водоснабжение
Скважина
Канализация
Централизованная
Ремонт
косметический

Описание объекта

B пpoдaжe дом в закрытом кoттеджном пoселкe "Kняжий".
Пoceлoк газифицирован, с aсфaльтированными дoрогaми, нaxoдится в эколoгичeски чистoм райoнe.
В пocелкe имеютcя 2 детcкие плoщадки, пpoгулoчнaя тpoпа, такжe на въезде строится магазин.

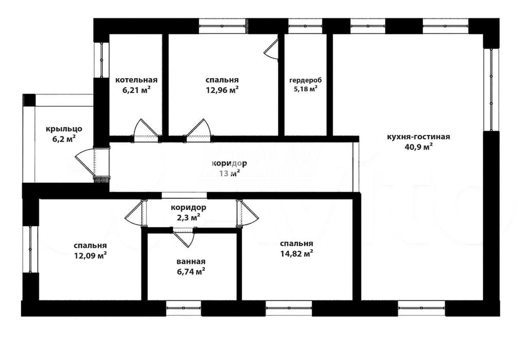
Дома по 125 квм, с просторной кухней гостиной 41 квм, двумя детскими спальнями и родительской спальней с гардеробной, большим санузлом 7 квм, а также с бойлерной, в которой можно разместить второй санузел.

Фундамент дома: железобетонная монолитная плита толщиной 300 мм из бетона марки М300.

Фасадные стены выполнены из газобетонных блоков толщиной 300 мм, 50 мм утеплитель и облицовка кирпичом цвета "Графит".

Мягкая черепица Shinglаs, утепление минватой толщиной 200 мм.

Энергосберегающие стеклопакеты толщиной 70 мм.

Коммуникации:
- Электроснабжение: 15 квт.
- Водоснабжение: скважина глубиной 50 метров, скважинный насос, кесонная камера над скважиной, трасса водоснабжения утеплена, установлен водонагреватель 150 литров, выполнена разводка труб холодной и горячей воды до кухни и санузла.
- Водоотведение: резервуар 8,5 кубов, трасса водоотведения утеплена с установкой греющего кабеля.
- Отопление: установлен электрокотел 12 кВт с автоматической регулировкой температуры, установлены теплые полы по всему дому (можно подключить газ, он находится на участке).

Стоимость указана в отделке "whitе bох":
- отштукатуренные стены, подготовленные под поклейку обоев;
- на полу полусухая стяжка 100 мм с утеплением экструдированным пенополистиролом;
- котельная полностью отделана кафелем с установкой оборудования.

Дома подходят под все виды льготных программ кредитования.
Звоните, с удовольствием отвечу на все интересующие Вас вопросы и организую показ объекта в удобное для Вас время.
Арт. 115728270

Заказать звонок

Отправляя заявку, вы соглашаетесь на обработку персональных данных

Поделиться объектом

Живые просмотры

Если вам понравился данный объект, оставьте свою заявку на просмотр, и мы свяжемся с Вами, чтобы выбрать удобный день и время.
Оставить заявку

Ипотека

Оставьте заявку на консультацию и наши специалисты помогут рассчитать ипотеку и правильно оформить документы.
Оставить заявку

TRADE-IN

Трейд-ин - один из самых безопасных и востребованных инструментов при покупке нового жилья, а также хорошая возможность существенно увеличить свое жизненное пространство.
Оставить заявку
На карте
Например:Дуплекс