^
Просмотрено: 38

Дом 141,3 м²

Позвонить
Лазурная усадьба тер. ДНТ, Свободная ул., 7/9
7 450 000 Руб.
 Цена за м2 78 421.05 Руб.
5
комнат
141,3 м2
площадь
960м2
участок
2
этажа
ДеревянныйДома 5 комнат

Характеристики

Площадь участка
960 м2
Площадь дома
141,3 м2
Жилая площадь
95 м2
Категория земель
ДНП
Отопление
Электрокотел
Год постройки
2017
Водоснабжение
Скважина
Канализация
Локальная
Ремонт
евро

Описание объекта

ДНП "Лазурная усадьба" находится в солнечном живописном месте между озером и рощей. Чистый воздух, достаточно просторно. При этом вокруг постоянно проживающие соседи, в пешей доступности детский сад и магазины.

Всего 12 км от города по Курганскому шоссе.

Отделка современная, выполнена в светлых нейтральных тонах.
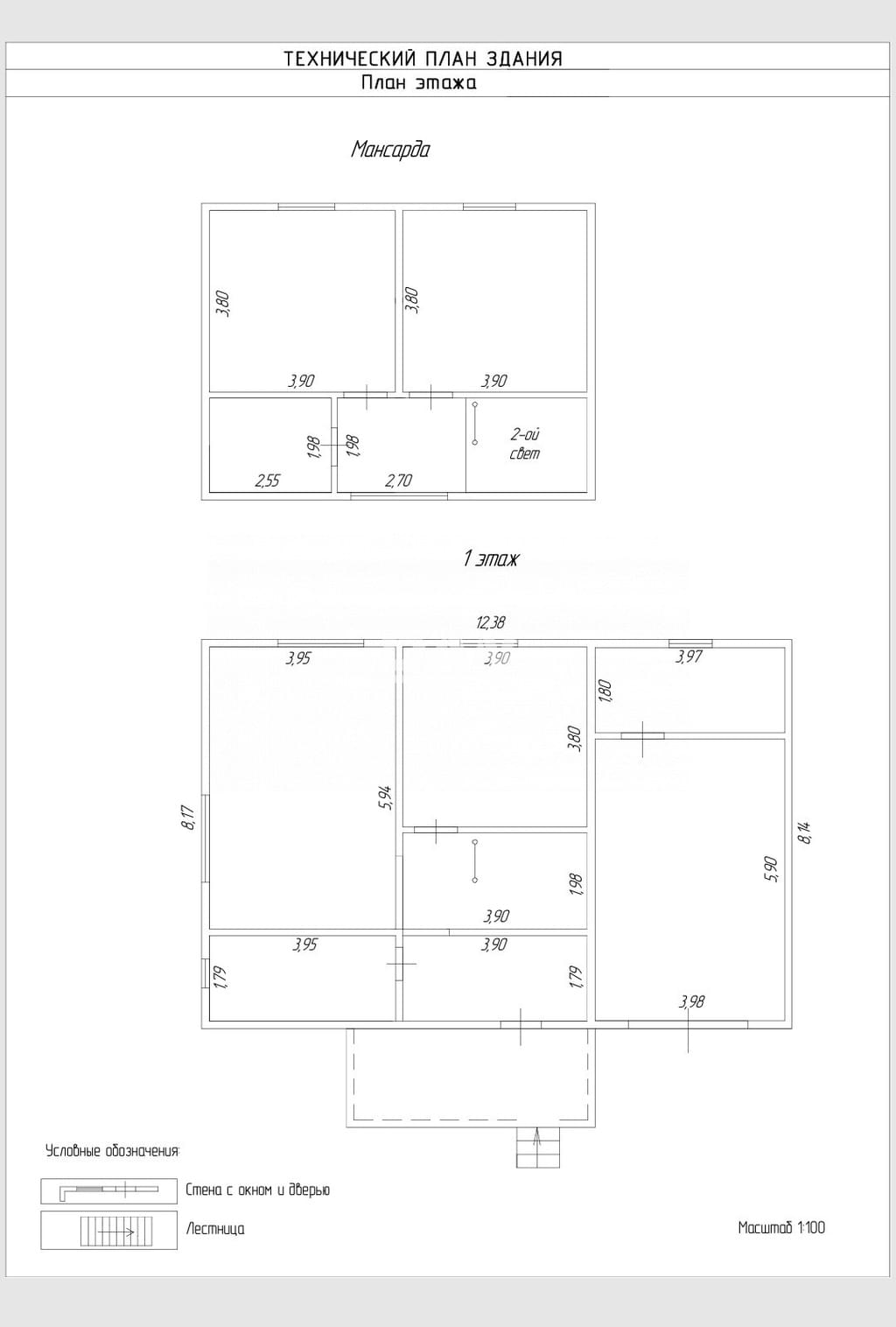
Планировка первого этажа:
кухня-гостиная площадью 24 кв.м., достаточно просторная и светлая комната с двумя большими окнами; жилая комната 16 кв м, прихожая 8 кв.м., совмещенный санузел 8 кв.м. Также на первом этаже есть гараж площадью 24 кв.м. и котельная площадью 8 кв.м. В гараже установлены роллетные ворота.
Планировка второго этажа:
две изолированные спальни по 16 кв.м. каждая, светлый коридор с окном, есть возможность организовать гардеробную либо дополнительный санузел площадью 5 кв.м.
Планировку и размеры помещений вы можете посмотреть на фото.

Водоснабжение из собственной скважины, канализация локальная, отопление - электро котёл, есть возможность подключить газ.


Дом готов к проживанию и ждет своих новых хозяев!

За более подробной информацией и организацией просмотра обращайтесь по указанному номеру. Звоните, организуем просмотр в удобное время!

Арт. 96944400

Заказать звонок

Отправляя заявку, вы соглашаетесь на обработку персональных данных

Поделиться объектом

Живые просмотры

Если вам понравился данный объект, оставьте свою заявку на просмотр, и мы свяжемся с Вами, чтобы выбрать удобный день и время.
Оставить заявку

Ипотека

Оставьте заявку на консультацию и наши специалисты помогут рассчитать ипотеку и правильно оформить документы.
Оставить заявку

TRADE-IN

Трейд-ин - один из самых безопасных и востребованных инструментов при покупке нового жилья, а также хорошая возможность существенно увеличить свое жизненное пространство.
Оставить заявку
На карте
Например:Дуплекс