^
Просмотрено: 33

Дом 268 м²

Позвонить
Шигаево, Соколиная гора ул., 10, к 3
41 500 000 Руб.
 Цена за м2 316 552.25 Руб.
5
комнат
268 м2
площадь
650м2
участок
2
этажа
БлокиТаунхаусы 5 комнат

Характеристики

Площадь участка
650 м2
Площадь дома
268 м2
Жилая площадь
131,1 м2
Категория земель
ИЖС
Отопление
Центральное
Год постройки
2012
Водоснабжение
Водопровод
Канализация
Централизованная
Ремонт
дизайнерский

Описание объекта

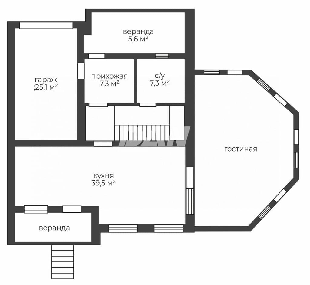
Представляем вашему вниманию роскошный таунхаус в одном из самых экологически чистых поселков — «Соколиная Гора», находящийся в сосновом бору. Просторный двухэтажный таунхаус общей площадью 267м² включает в себя:

Первый этаж: Большая кухня (39,5 м²) с выходом в просторную гостиную эркерной формы (52 м²) с панорамными окнами.

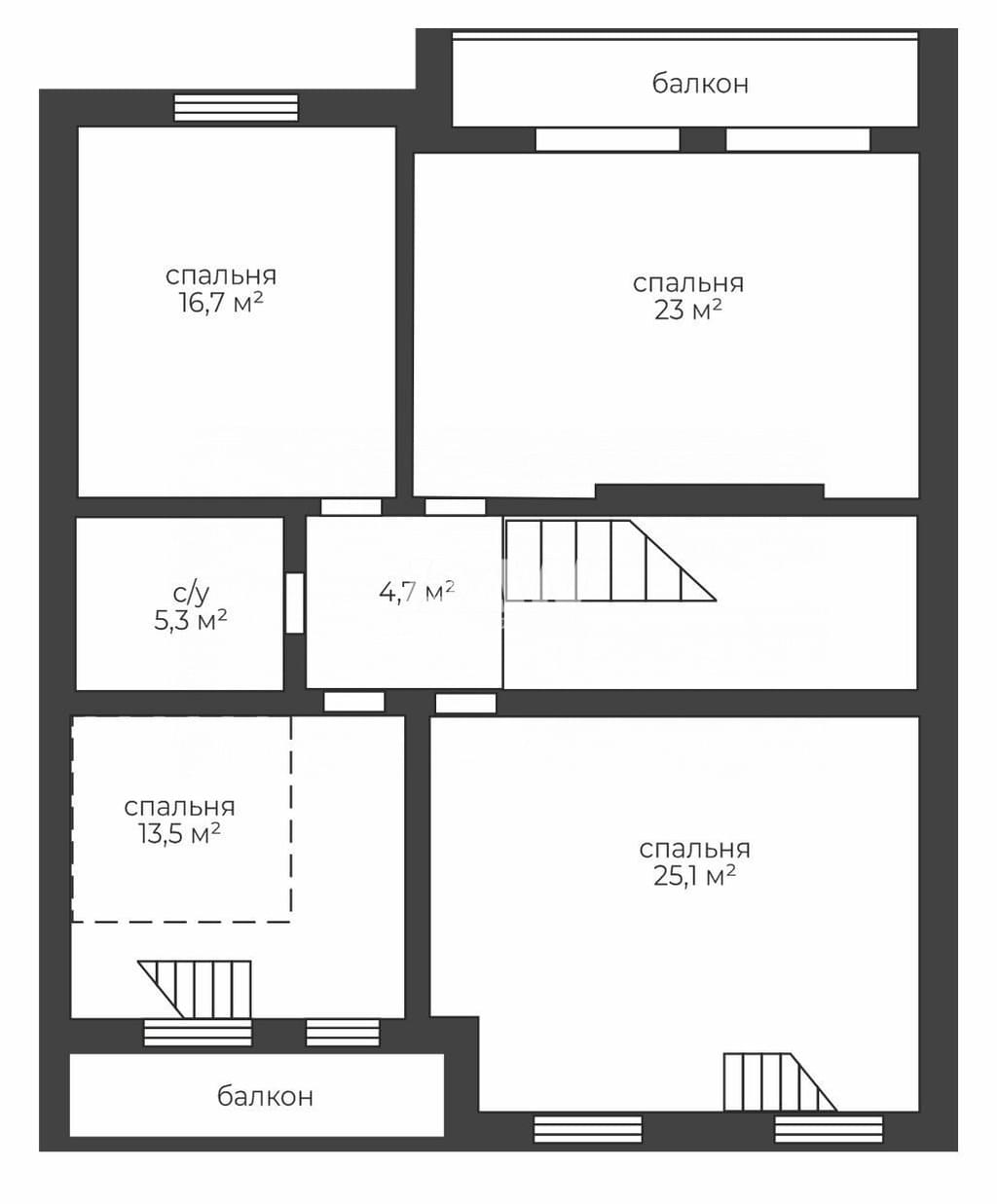
Второй этаж: Две детские спальни с высокими потолками, просторную главную спальню с панорамным остеклением и приватным выходом на балкон, а также функциональный кабинет для работы и отдыха..

Комфорт и удобство:
Теплый гараж для автомобиля, с входом из дома
Санузлы на каждом этаже для максимального комфорта

Придомовая территория :
Земельный участок 6 соток с продуманным ландшафтным дизайном включает:
Благоустроенный двор с декоративными елями
Цветники с роскошными гортензиями
Место для отдыха на свежем воздухе

Преимущества таунхауса:
Чистый воздух и благоприятная среда для жизни
  • Благоустроенный поселок с развитой инфраструктурой
  • Максимальное естественное освещение благодаря панорамным окнам
  • Продуманная планировка каждого помещения
  • Продуманное зонирование пространства для комфортной жизни всей семьи
  • Современные инженерные системы


Кому идеально подойдет этот таунхаус
Для семей с детьми:
  • Безопасность и комфорт: охраняемая территория поселка, видеонаблюдение
  • Пространство для всей семьи: просторные комнаты, возможность организовать игровую зону на участке
  • Экологичность: чистый воздух, близость к природе, озелененная территория
  • Место для активного отдыха

Для пожилых людей:
  • Комфортная среда: удобная планировка на двух этажах
  • Безопасность: закрытая территория, отсутствие необходимости ухаживать за большим участком
  • Спокойная атмосфера: мало соседей, тишина, чистый воздух
  • Практичность: все удобства на каждом этаже, теплый гараж
  • Уход за садом: возможность заниматься любимым делом на небольшом участке

Для выбирающих загородную жизнь:
  • Баланс: сочетание городской комфортности и загородной тишины
  • Собственный участок: возможность реализовать садовые мечты
  • Экологичность: проживание в чистом районе
  • Приватность: отдельный вход, личное пространство
  • Удобство: все коммуникации, как в городской квартире, при загородном укладе жизни





Арт. 113015373

Заказать звонок

Отправляя заявку, вы соглашаетесь на обработку персональных данных

Поделиться объектом

Живые просмотры

Если вам понравился данный объект, оставьте свою заявку на просмотр, и мы свяжемся с Вами, чтобы выбрать удобный день и время.
Оставить заявку

Ипотека

Оставьте заявку на консультацию и наши специалисты помогут рассчитать ипотеку и правильно оформить документы.
Оставить заявку

TRADE-IN

Трейд-ин - один из самых безопасных и востребованных инструментов при покупке нового жилья, а также хорошая возможность существенно увеличить свое жизненное пространство.
Оставить заявку
На карте
Например:Дуплекс