^
Просмотрено: 8

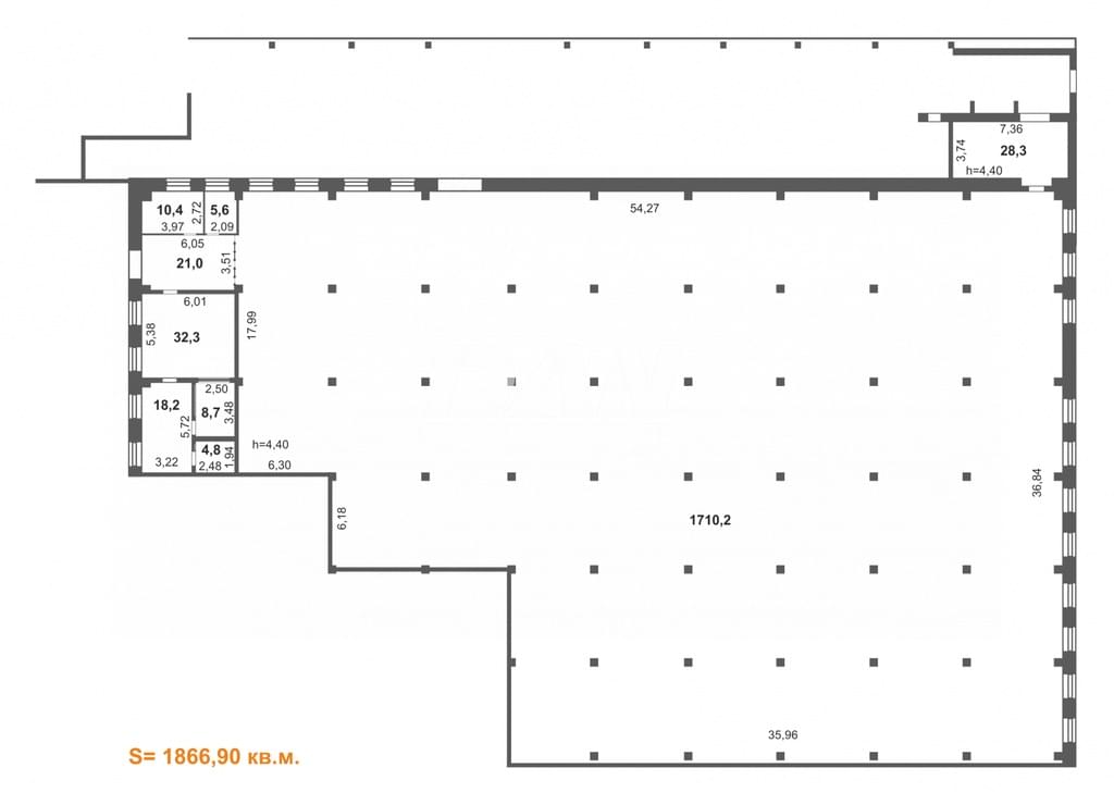
Коммерческий объект 1867 м²

Позвонить
Челябинск, Копейское ш., 9П
746 800 Руб.
 Цена за м2 400.00 Руб.
1
комната
1867 м2
площадь
1/1
этаж

Характеристики

Площадь
1867 м2
Ремонт
требует ремонта
Вход
2
Наличие мебели
нет

Описание объекта

Сдается в аренду отличное теплое производственно-складское помещение с дебаркадером и помещением для персонала, офисом общей площадью 1867 кв. м. Площадь объекта позволяет разместить склад готовой продукции, различные виды производства, распределительный центр.

Транспортная развязка в расположении объекта, обеспечивает всем выдам автомобильного транспорта доступ:
+ 1 мин. до ул. Копейское шоссе (прямой въезд/выезд в г.Копейск
+ 15 мин. автодорога Меридиан (прямой въезд/выезд в сторону Республики Казахстан, г.Троицк, г.Уфа, г.Екатеринбург, г.Курган)
+ 20 мин. Обход города Челябинска (прямой въезд/выезд на федеральную трассу М5)
+ 20 мин. до Центра Челябинска


Характеристики объекта:
Электрическая мощность объекта 220 В + 380 В мощностью 60 кВт
Склад с АБК
Общая площадь 1867 кв. м:
  • 1 752,7 кв.м складское
  • 82,5 кв.м помещения для персонала
  • 31,7 кв.м офисное

Ворота распашные 3,0 *3,0 м - 1 шт.
Отопление - централизованное
Температурный режим +20С
Беспылевые полы
Высота потолка: от 4,4 м.
3 сан. узела.
Парковка на 10 машиномест
Доступ 24/7
Охранная сигнализация
Подъездные пути: асфальтированная дорога

Коммунальные расходы оплачиваются отдельно.

По всем интересующим вопросам - звоните
Арт. 18749832

Заказать звонок

Отправляя заявку, вы соглашаетесь на обработку персональных данных

Поделиться объектом

Живые просмотры

Если вам понравился данный объект, оставьте свою заявку на просмотр, и мы свяжемся с Вами, чтобы выбрать удобный день и время.
Оставить заявку

Ипотека

Оставьте заявку на консультацию и наши специалисты помогут рассчитать ипотеку и правильно оформить документы.
Оставить заявку

TRADE-IN

Трейд-ин - один из самых безопасных и востребованных инструментов при покупке нового жилья, а также хорошая возможность существенно увеличить свое жизненное пространство.
Оставить заявку

Похожие предложения

На карте
Например:Дуплекс