^
Просмотрено: 15

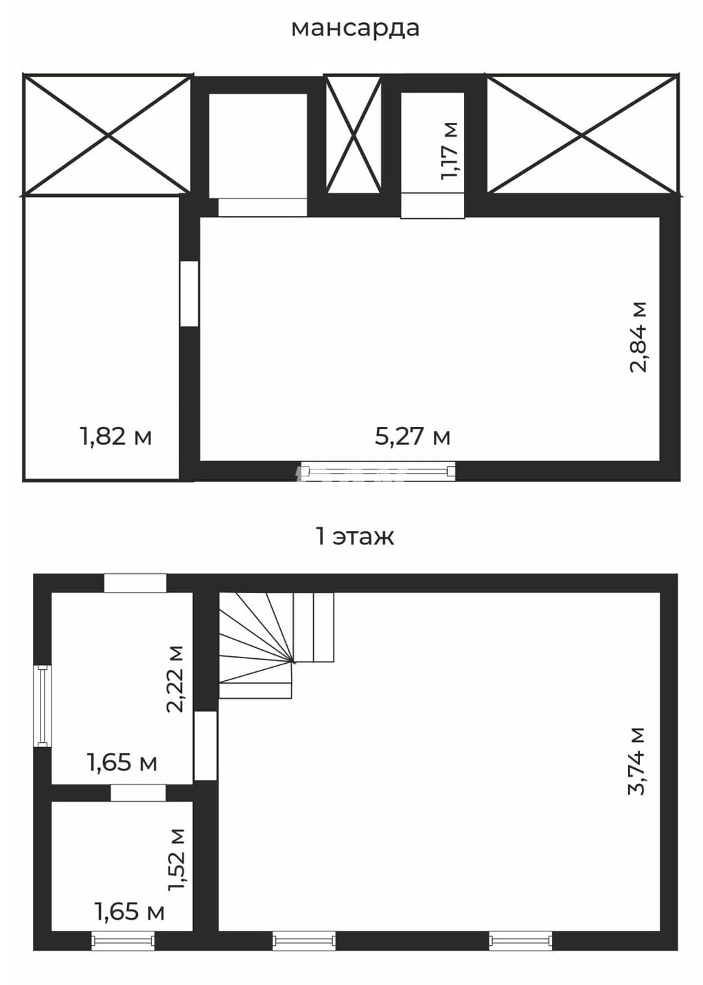
Дом 49 м²

Позвонить
Челябинск, Металлургический р-н, Челябинская область, Челябинск г., Металлургический
950 000 Руб.
 Цена за м2 31 045.75 Руб.
2
комнаты
49 м2
площадь
411м2
участок
2
этажа
КирпичныйСадовые участки 2 комнаты

Характеристики

Площадь участка
411 м2
Площадь дома
49 м2
Жилая площадь
30,6 м2
Категория земель
Садоводство
Отопление
Нет
Год постройки
1997
Водоснабжение
Водопровод
Канализация
Локальная
Ремонт
косметический

Описание объекта

Продаётся земельный участок 4, 11 сотки с садовым домом 49 кв.м. в СНТ "Дружба" в Металлургическом районе.
Дом из кирпича с мансардой, с балконом. Две большие комнаты на каждом этаже. Электричество в доме есть. Холодильник новый, микроволновая печь. Две плитки: электрическая и газовая.
Стены оштукатурены внутри и снаружи. На полу постелен линолеум, что делает удобным уборку дома. Оконные рамы с мелкими секциями и двери металлические, Проникнуть в дом невозможно без ключей. Дом - сейф.
Печь разобрали за ненадобностью, но фундамент и дымоход под печь остались и при желании можно сложить новую печь или камин.
Рядом с домом на участке отдельно построена баня из газоблока. Внутри - предбанник и парная с отделкой деревом. Есть хозблок для хранения инвентаря. Туалет тоже на участке, максимально удобный в использовании: с унитазом.
Вода подается круглосуточно, удобный набор воды для бани (не надо таскать ведрами).
На участке есть металлический каркас для теплицы, плодовые деревья и кустарники, две грядки для клубники и большая открытая площадка для установки бассейна.
Остановка в 800 метрах, у въезда в СНТ продуктовый павильон.

Один взрослый собственник. Документы для продажи готовы: выполнено межевание земельного участка и дом зарегистрирован, как жилой. Возможно прописаться.

Арт. 134994926

Заказать звонок

Отправляя заявку, вы соглашаетесь на обработку персональных данных

Поделиться объектом

Живые просмотры

Если вам понравился данный объект, оставьте свою заявку на просмотр, и мы свяжемся с Вами, чтобы выбрать удобный день и время.
Оставить заявку

Ипотека

Оставьте заявку на консультацию и наши специалисты помогут рассчитать ипотеку и правильно оформить документы.
Оставить заявку

TRADE-IN

Трейд-ин - один из самых безопасных и востребованных инструментов при покупке нового жилья, а также хорошая возможность существенно увеличить свое жизненное пространство.
Оставить заявку

Похожие предложения

На карте
Например:Дуплекс