^
Просмотрено: 7

Помещение свободного назначения 344,9 м²

Позвонить
Челябинск, Троицкий тракт, 62
23 750 000 Руб.
 Цена за м2 68 860.54 Руб.
1
комната
344,9 м2
площадь
1/2
этаж

Характеристики

Площадь
344,9 м2
Ремонт
евро
Вход
2
Наличие мебели
нет

Описание объекта

Продаётся Готовый арендный бизнес, включающий 2-х этажное здание на первой линии с отдельным входом на ул. И.И. Неплюева. Площади объекта сданы в аренду многолетним постоянным арендаторам. Уникальная локация с высокий трафиком потенциальных клиентов и покупателей, близость остановок общественного транспорта, круглосуточный доступ создали прекрасные условия для использования объекта в качестве: магазинов, различных видов объектов сферы услуг, а также в качестве офиса. Объект расположен на собственном земельном участке площадью 308 кв.м.

Характеристика объекта:
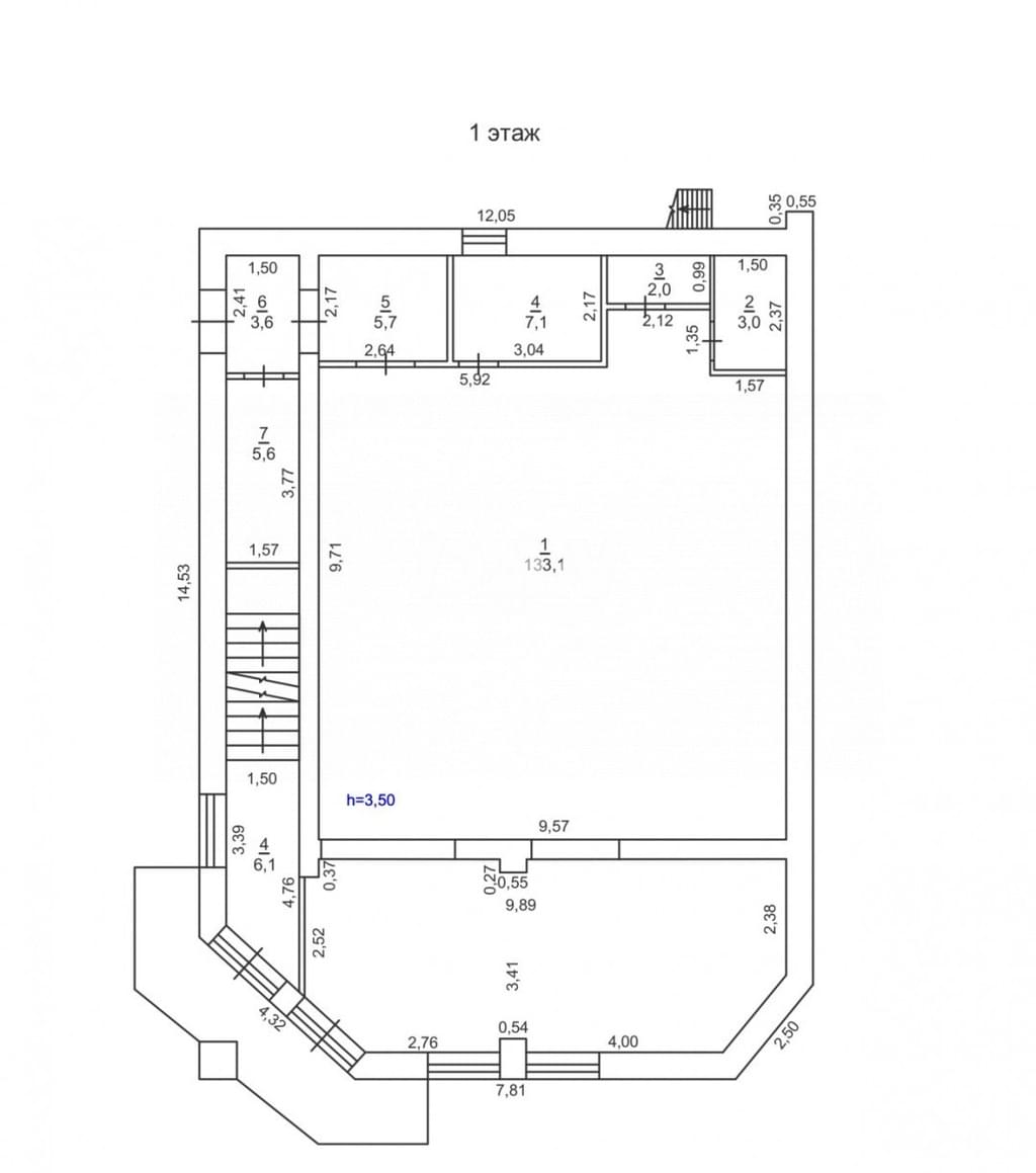
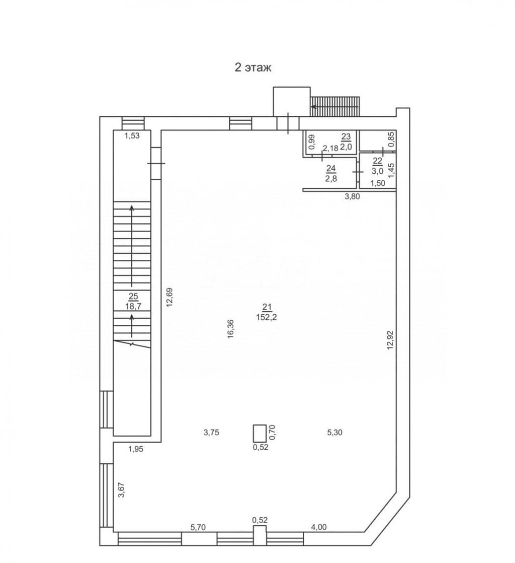
● Общая площадь - 344,9 кв.м.
1 этаж площадью 160,1 кв.м
2 этаж площадью 184,8 кв.м
● Отдельная входные группы на улицу И.И. Неплюева. из каждого этажа и лестничных маршей на 2 этаж
● Отопление - централизованное
● Водоснабжение и водоотведение - центральное
● Электрическая мощность - 50 кВт,
● Охранно-пожарная сигнализация
● Ремонт: качественный евроремонт.
● Система вентиляции - вытяжная
● Сан. узелы на каждом этаже

Объект расположен на первой линии ул. И.И. Неплюева в 20 м от остановки общественного транспорта ост. Проспект Неплюева (5 маршрутов) общественного транспорта во все районы города.

Транспортная развязка в расположении объекта, обеспечивает доступ всем видам автомобильного + 1 мин. до ул. Гагарина (центральная улица города)
+ 5 мин до ЖД Вокзал г.Троицка
+ 5 мин. прямой въезд/выезд на федеральную трассу М 36 (прямой въезд/выезд в сторону Республики Казахстан, г.Челябинск, г.Уфа, г.Екатеринбург, г.Курган)
+ 3 мин. до Центра г. Троицк.

Инфраструктура в районе 5-минутной пешеходной доступности:
* Сетевые супермаркеты Магнит и Пятерочка
* Аптека
* Продуктовые магазины
* Магазины одежды, обуви
* Объекты бытовых услуг
* Объекты медицинской тематики
* Объекты сферы отдыха и развлечений
* Научные и учебные заведения

Преимущества объекта:
+ Площади объекта сданы в аренду и генерируют арендный поток
+ Качественный ремонт и отличное техническое состояние объекта
+ Близость объекта от объектов инфраструктуры
+ Большой пешеходный трафик улицы Неплюева
+ Близость остановок общественного транспорта
+ Земельный участок, на котором расположено здание в собственности
+ Установлены охранные, пожарные системы и система вытяжной вентиляции

Звоните! Ответим на интересующие вопросы.
Арт. 99956519

Заказать звонок

Отправляя заявку, вы соглашаетесь на обработку персональных данных

Поделиться объектом

Живые просмотры

Если вам понравился данный объект, оставьте свою заявку на просмотр, и мы свяжемся с Вами, чтобы выбрать удобный день и время.
Оставить заявку

Ипотека

Оставьте заявку на консультацию и наши специалисты помогут рассчитать ипотеку и правильно оформить документы.
Оставить заявку

TRADE-IN

Трейд-ин - один из самых безопасных и востребованных инструментов при покупке нового жилья, а также хорошая возможность существенно увеличить свое жизненное пространство.
Оставить заявку

Похожие предложения

На карте
Например:Дуплекс