^
Просмотрено: 15

Дом 120 м²

Позвонить
Полетаево II-е, Челябинская область, Сосновский район, Полетаево II-е д.
7 500 000 Руб.
 Цена за м2 156 250.00 Руб.
3
комнаты
120 м2
площадь
1000м2
участок
1
этаж
ПенобетонДома 3 комнаты

Характеристики

Площадь участка
1000 м2
Площадь дома
120 м2
Жилая площадь
48 м2
Категория земель
ИЖС
Отопление
Электрокотел
Водоснабжение
Скважина
Канализация
Локальная
Ремонт
косметический

Описание объекта

Уютный дом 120 м² на участке 10 соток в 30 минутах от Челябинска
Готовы к новоселью? Предлагаем вашему вниманию современный и тёплый дом, полностью подготовленный к чистовой отделке. Вам останется только воплотить свои дизайнерские идеи!
О доме:
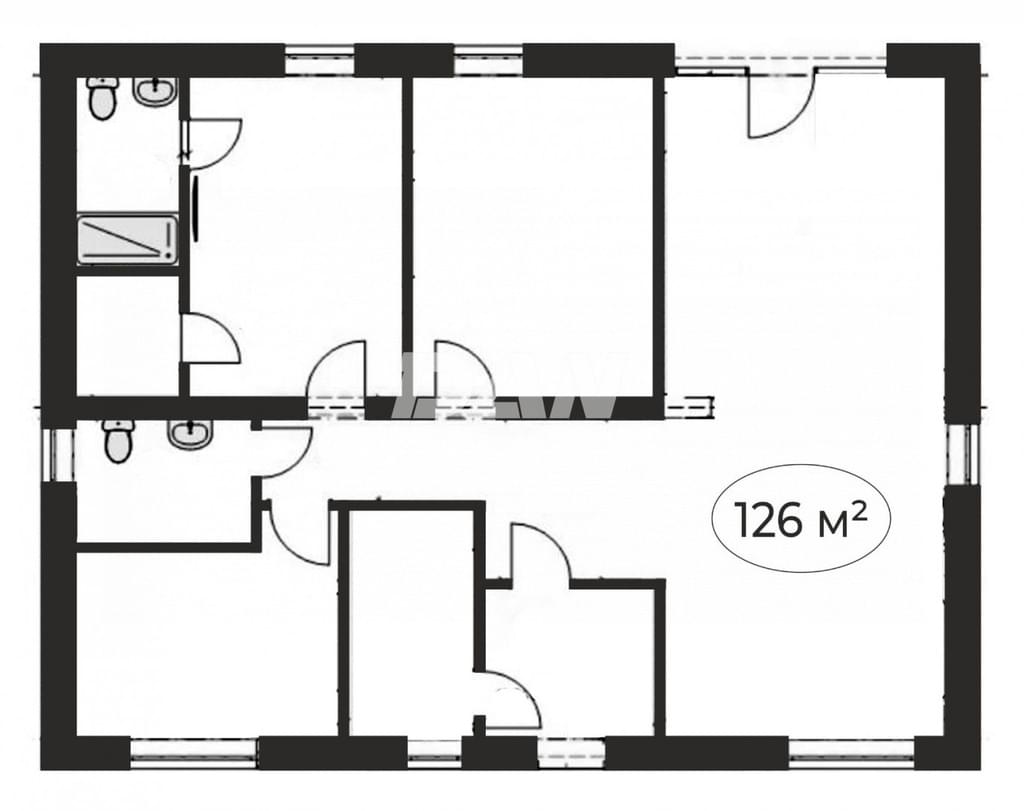
  • Площадь: 126 м² на участке 10 соток.
  • Расположение: Всего 30 минут на автомобиле до Челябинска.
  • Коммуникации: Полностью автономные и готовы к использованию: своя скважина с системой фильтров, электричество, канализация с септиком.
  • Отопление: Экономичная и комфортная система «тёплый пол» по всему дому, электрокотёл Thermex.

Конструктив и отделка:
  • Фундамент: Надёжная монолитная плита со сваями.
  • Стены: Тёплые газоблоки с утеплением и фасадом под штукатурку.
  • Кровля: Долговечная металлочерепица.
  • Состояние: Дом ждёт финального штриха! Стены выровнены, установлены пластиковые окна, подоконники и водостоки.

Планировка:
Просторная кухня-гостиная, три уютные спальни, санузел и бойлерная.
Важно:
  • Септик и скважина уже включены в стоимость!
  • Подходит под ипотечные программы: «Семейная ипотека» и «Сельская ипотека».

Идеальный вариант для тех, кто ценит надёжность, комфорт и выгодное расположение!
Арт. 120224273

Заказать звонок

Отправляя заявку, вы соглашаетесь на обработку персональных данных

Поделиться объектом

Живые просмотры

Если вам понравился данный объект, оставьте свою заявку на просмотр, и мы свяжемся с Вами, чтобы выбрать удобный день и время.
Оставить заявку

Ипотека

Оставьте заявку на консультацию и наши специалисты помогут рассчитать ипотеку и правильно оформить документы.
Оставить заявку

TRADE-IN

Трейд-ин - один из самых безопасных и востребованных инструментов при покупке нового жилья, а также хорошая возможность существенно увеличить свое жизненное пространство.
Оставить заявку

Похожие предложения

На карте
Например:Дуплекс