^
Просмотрено: 296

Земельный участок 145 м²

Позвонить
Троицк, им Н.В.Еремеева ул., 53а
36 000 000 Руб.
 Цена за м2 248 275.86 Руб.
145 м2
площадь

Характеристики

Площадь
145 м2

Описание объекта

Продается Благоустроенный Земельный участок площадью 145 соток на котором расположен с комплексом производственных, складских нежилых зданий с АБК (офисом). На территории Комплекса расположены административно-бытовое здания, склады с дебаркадером, теплый бокс для автотранспортных средств, склад с мостовым краном, газовая котельная. Площадь земельного участка позволяет строительства новых объектов капитального строительства.

Инфраструктура включает огороженную асфальтированную территорию с организованным контрольно-пропускным пунктом, централизованные инженерные сети электроснабжения, водоснабжения, канализации, внутренние сети теплоснабжения от помещения котельной, систему охранно-пожарной сигнализации, земельный участок в собственности.


Земельный участок с кадастровым номером 74:35:1700136:11 площадью 14524 кв.м в собственности.
Благоустройства: ограждение - железобетонный забор по периметру земельного участка, около 4000 кв.м площади земельного участка асфальтированы.

Предполагаемый вид использования:
• Производство
• Склад
• Логистический центр
• Представительство производственной компании

Объект расположен в пешей доступности от остановки общественного транспорта (900м) ост. ПТУ (16 маршрутов) общественного транспорта во все районы города.
Транспортная развязка в расположении объекта, обеспечивает доступ всем видам автомобильного транспорта:
+ 1 мин. до ул. Крахмалева (центральная улица города)
+ 1 мин до ЖД Вокзал г.Троицка
+ 5 мин. прямой въезд/выезд на федеральную трассу М 36 (прямой въезд/выезд в сторону Республики Казахстан, г.Челябинск, г.Уфа, г.Екатеринбург, г.Курган)
+ 5 мин. до Центра г. Троицк.

Характеристики зданий на земельном участке:
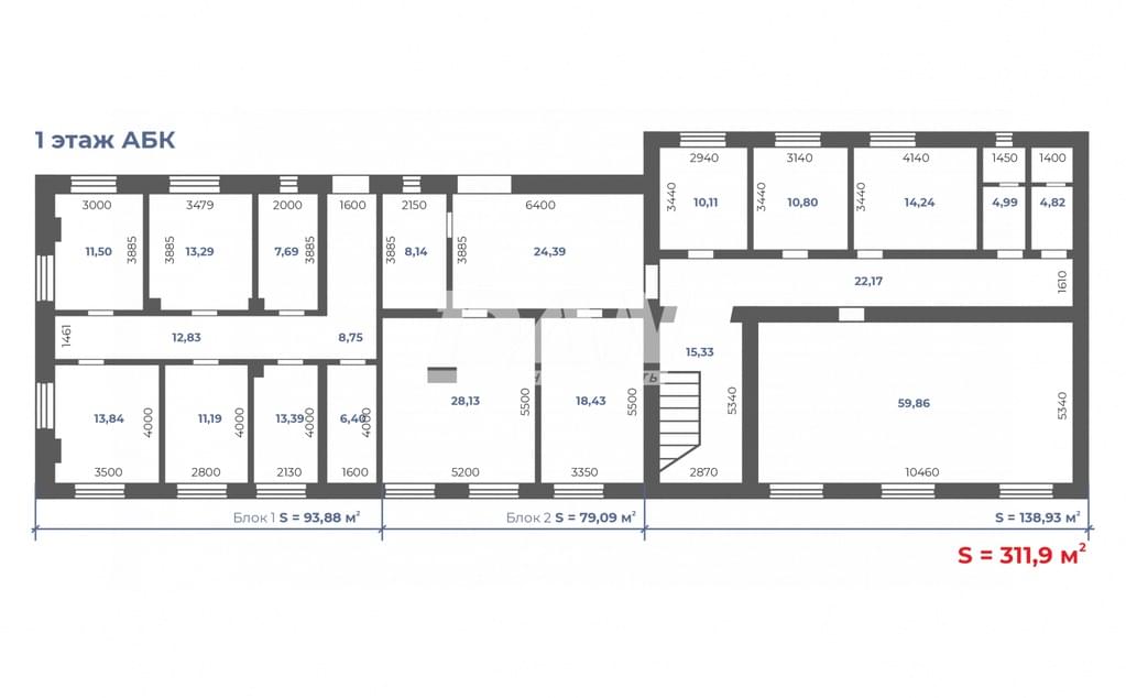
- Административное здание - здание конторы, площадь: 329.8 кв.м
Этажность - 2 этажа;
- Административное здание - здания конторы (пристройка), площадь:
284,1 кв.м
Этажность - 1 этаж + подвал;
- Складское здание – теплый бокс (склад №4), площадь: 721,9 кв.м
Этажность - 1 этажа;
- Складское здание с дебаркадером (Склад запасных частей №2),
площадь: 1401,9 кв.м
Этажность - 1 этаж;
- Нежилое здание (холодный склад) с мостовым краном грузоподъемностью 5т. общей площадью 456 кв.м
Этажность - 1 этаж;
- Нежилое здание (проходная) общей площадью 20 кв.м.

Коммуникации:
Отопление - автономное (газовая котельная мощностью 360кВт) с возможностью увеличения мощности
Газоснабжение - от надземного газопровода высокого давления (0,6 МПа) д. 159 мм
Водоснабжение и водоотведение - автономные (скважины пропуская способность 48,6 м3 в час, септики объемом 9 м3)
Электричество: 220 В + 380 В мощностью 250 кВт с возможностью увеличения
Объект расположен на охраняемой территории базы с доступ - 24/7
Круглосуточный пост охраны базы
Подъездные пути: Асфальтовая дорога.

Преимущества объекта:
+ Складские помещения с дебаркадером
+ Склад мостовым краном
+ Большая асфальтированная площадка для автотранспорта и открытого хранения
+ Офисное административное здание с качественным ремонтом
+ Удобные подъездные пути
+ Охраняемая территория с собственным постом охраны
+ Универсальное использование объекта
+ Объект подключен ко всем коммуникациям
+ Возможность строительства новых объектов капитального строительства до 5000 кв.м

По всем интересующим вопросам - звоните.

Арт. 52548280

Заказать звонок

Отправляя заявку, вы соглашаетесь на обработку персональных данных

Поделиться объектом

Живые просмотры

Если вам понравился данный объект, оставьте свою заявку на просмотр, и мы свяжемся с Вами, чтобы выбрать удобный день и время.
Оставить заявку

Ипотека

Оставьте заявку на консультацию и наши специалисты помогут рассчитать ипотеку и правильно оформить документы.
Оставить заявку

TRADE-IN

Трейд-ин - один из самых безопасных и востребованных инструментов при покупке нового жилья, а также хорошая возможность существенно увеличить свое жизненное пространство.
Оставить заявку
На карте
Например:Дуплекс