^
Просмотрено: 9

Коммерческий объект 964,8 м²

Позвонить
Челябинск, Елькина ул., 112, литера а
868 320 Руб.
 Цена за м2 900.00 Руб.
20
комнат
964,8 м2
площадь
9/12
этаж

Характеристики

Площадь
964,8 м2
Ремонт
косметический
Вход
общий вход
Наличие мебели
нет

Описание объекта

Сдаются в аренду офисные площади в бизнес-центре "Партнер", расположенном по адресу: ул. Елькина, д. 112. Два этажа с кабинетной планировкой находятся в новом офисном комплексе. Удобная парковка, лифты, свежий ремонт, кондиционеры, вентиляция, сети СКС (серверная на два этажа), достаточное количество естественного света.

Здание офисного центра расположено на первой линии, улицы Елькина. Транспортная доступность. Трехполосные автодороги улицы Доватора и улицы Курчатова (Овчинникова), обеспечивают большую пропускную способность автотранспорта в сторону ЖД Вокзала (расстояние 3 мин.) и обратно. Расстояние до центра города – 5 минут. Рядом с объектом ведется строительство Метротрама, в шаговой доступности будет расположена станция ул. Овчинникова.

0,6 км до Управления Росреестра по Челябинской области
1,2 км до ЖД и Авто Вокзала
2,1 км до пл. Революции

Помещения предлагаются в чистовой отделке: потолок Армстронг, стены: под покраску, пол: коридор кафель, кабинеты - линолеум, санузел кафель. В здании работает столовая для сотрудников, Есть дополнительный кабинет в аренду на первом этаже с окном приёма для граждан, площадью 16.5 м².

Преимущества объекта:
Коммерческое здание
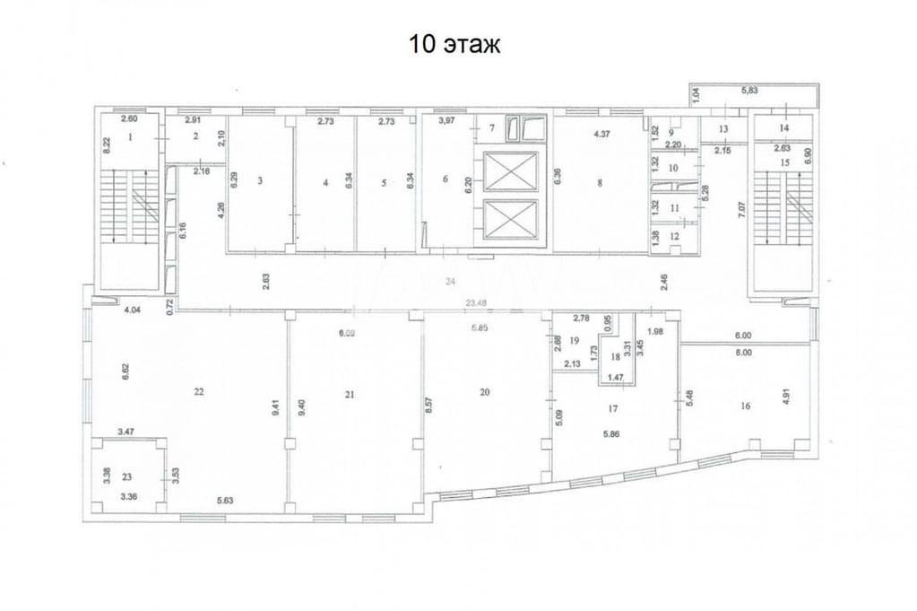
Этаж: 9, 10
Площадь этажа: 482,4 кв.м.
Лифт: 2
Кабинетная планировка: 20 офисов (от 16 до 60 кв. м.)
Сан. узел: на этаже
Естественное освещение
Приточно-вытяжная вентиляция: есть
Кондиционирование: есть
Удобные подъездные пути
Транспортная доступность из любого района города

Парковка: гостевая перед зданием, на заднем дворе вместительность - 140 машиномест
Безопасность: круглосуточная охрана объекта, пропускная система, пожарно-охранная сигнализация

Коммунальные платежи, оплачиваются дополнительно: отопление и э/э, усредненная сумма по году за один этаж составит около 20 тыс.руб. в месяц.

Характеристики здания:
Этажность: 12 этажей
Общая площадь объекта: 5700 кв.м.
Материал стен и перекрытий: ж/б плита, кирпич
Электрическая мощность: от 15 кВт с возможностью увеличения
Высота потолков: 3 м.
Входов: 3
Коммуникации: центральные

В радиусе 500 м. расположены:
Объекты продуктового ритейла (более 10)
7 Объектов общественного питания
10 объектов медицинской тематики
Объекты бытовых услуг (более 50)
Строительные магазины и товары для дома (более 70)
Объекты автомобильной тематики (более 40)

Заинтересовались объектом? Звоните, с удовольствием отвечу на ваши вопросы!
Арт. 120521797

Заказать звонок

Отправляя заявку, вы соглашаетесь на обработку персональных данных

Поделиться объектом

Живые просмотры

Если вам понравился данный объект, оставьте свою заявку на просмотр, и мы свяжемся с Вами, чтобы выбрать удобный день и время.
Оставить заявку

Ипотека

Оставьте заявку на консультацию и наши специалисты помогут рассчитать ипотеку и правильно оформить документы.
Оставить заявку

TRADE-IN

Трейд-ин - один из самых безопасных и востребованных инструментов при покупке нового жилья, а также хорошая возможность существенно увеличить свое жизненное пространство.
Оставить заявку

Похожие предложения

На карте
Например:Дуплекс