^
Просмотрено: 10

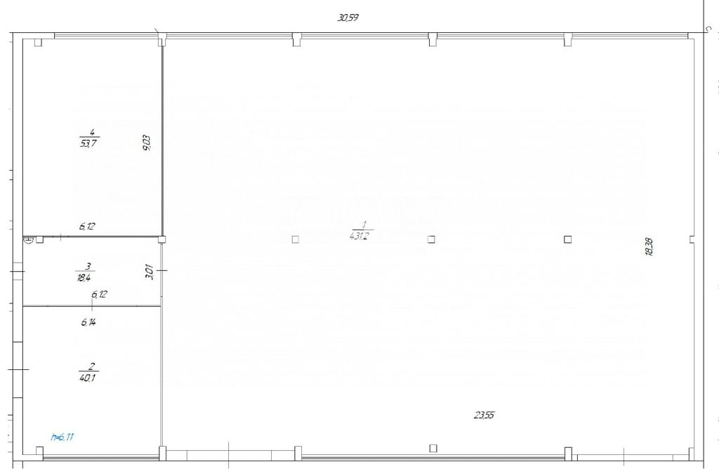
Коммерческий объект 565 м²

Позвонить
Челябинск, Физкультурная ул., 34
226 000 Руб.
 Цена за м2 400.00 Руб.
1
комната
565 м2
площадь
1/1
этаж

Характеристики

Площадь
565 м2
Ремонт
требует ремонта
Вход
2
Наличие мебели
нет

Описание объекта

Сдается в аренду отличное теплое производственно-складское помещение общей площадью 565 кв. м. Площадь объекта позволяет разместить склад готовой продукции, различные виды производства.

Транспортная развязка в расположении объекта, обеспечивает всем выдам автомобильного транспорта доступ:
+ 3 мин. до ул. Троицкий тракт (прямой въезд/выезд на федеральную трассу М5)
+ 5 мин. до автодорога Меридиан (прямой въезд/выезд в сторону Республики Казахстан, г.Троицк, г.Уфа, г.Екатеринбург, г.Курган)
+10 мин. до Центра

Характеристики объекта:
Электрическая мощность объекта 220 В + 380 В мощностью 100 кВт с возможностью увеличения
Склад с дебаркадерами
Общая площадь 565 кв. м:
Ворота распашные 3,2,0 *3,5 м - 1 шт.
Отопление - автономная газовая
Температурный режим регулируется автоматически
Беспылевые полы
Высота потолка: 6м
Парковка на 20 машиномест
Доступ 24/7
Охранная сигнализация
Подъездные пути: асфальтированная дорога, железнодорожный путь

Коммунальные расходы оплачиваются отдельно.

Преимущества объекта:
+ Помещение обеспечен всеми видами коммуникаций большой мощности
+ Превосходное логистическое расположение
+ Удобные подъездные пути (асфальтовые дороги)
+ Охраняемая территория
+ Универсальное использование объекта

По всем интересующим вопросам - звоните
Арт. 110463348

Заказать звонок

Отправляя заявку, вы соглашаетесь на обработку персональных данных

Поделиться объектом

Живые просмотры

Если вам понравился данный объект, оставьте свою заявку на просмотр, и мы свяжемся с Вами, чтобы выбрать удобный день и время.
Оставить заявку

Ипотека

Оставьте заявку на консультацию и наши специалисты помогут рассчитать ипотеку и правильно оформить документы.
Оставить заявку

TRADE-IN

Трейд-ин - один из самых безопасных и востребованных инструментов при покупке нового жилья, а также хорошая возможность существенно увеличить свое жизненное пространство.
Оставить заявку

Похожие предложения

На карте
Например:Дуплекс