^
Просмотрено: 8

Коммерческий объект 1200 м²

Позвонить
Челябинск, Енисейская ул., 9, к 2
900 000 Руб.
 Цена за м2 750.00 Руб.
1
комната
1200 м2
площадь
1/1
этаж

Характеристики

Площадь
1200 м2
Ремонт
косметический
Вход
общий вход
Наличие мебели
нет

Описание объекта

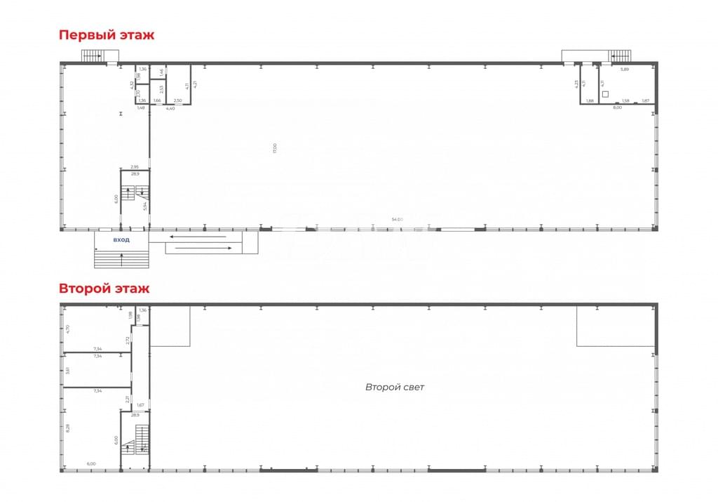
Предлагаем рассмотреть инвестиционный проект по завершению строительства складского здания 1200 кв.м. за счет средств арендатора, при этом сумма вложений будет засчитана в стоимость будущей аренды. На данный момент проводится монтаж стен и кровли, который завершиться до 01.12.2025 г.

Характеристики земельного участка:
Вид разрешенного использования: для эксплуатации производственной базы
Право собственности: Физ. лицо.
Общая площадь здания: 1 225 кв.м.
Складская площадь: 920 кв.м.
Высота потолка: 6 м.
Кол-во ворот: 2 шт. (3*4 м.)
Коммуникации:
Вода/водоотведение - автономные
Эл-во - 350 кВт (на всю территорию)
Отопление - Газ.

Коммерческие условия:
  • Долгосрочный договор аренды, с учетом погашения задолженности по завершению строительства объекта.


Предполагаемый вид использования:
  • Склад готовой продукции

  • Производство (чистое)

  • Шоу-рум


Объект расположен в 500 м. от ул. Копейское шоссе и автодороги
Меридиан по асфальтированной дороге ул. Енисейская, в 1-минутной транспортной
доступности от ТРК областного масштаба «АЛМАЗ».

Транспортная развязка в расположении объекта, обеспечивает любому
автомобильному транспорту, удобные подъездные пути:
+1 мин. до ул. Копейское шоссе
+3 мин. автодорога Меридиан (прямой выезд в сторону Республики
Казахстан, г.Троицк, г.Уфа, г.Екатеринбург, г.Курган)
+7 мин. до Центра

Звоните! Будем рады ответить на ваши вопросы.
Арт. 120809335

Заказать звонок

Отправляя заявку, вы соглашаетесь на обработку персональных данных

Поделиться объектом

Живые просмотры

Если вам понравился данный объект, оставьте свою заявку на просмотр, и мы свяжемся с Вами, чтобы выбрать удобный день и время.
Оставить заявку

Ипотека

Оставьте заявку на консультацию и наши специалисты помогут рассчитать ипотеку и правильно оформить документы.
Оставить заявку

TRADE-IN

Трейд-ин - один из самых безопасных и востребованных инструментов при покупке нового жилья, а также хорошая возможность существенно увеличить свое жизненное пространство.
Оставить заявку

Похожие предложения

На карте
Например:Дуплекс